Rif: V128
FANO
PESARO-URBINO - zona Rosciano
La dimora che accoglie, semplifica la quotidianità e restituisce il piacere dell'abitare
PERCHÈ SCEGLIERMI
Pronto all'uso e gestione light - Condizioni pronti-via! Parti con il piede giusto e prosegui al tuo ritmo ideale
A contatto con la natura, al centro del tuo mondo - Tutto quello che potevi desiderare, esattamente dove volevi, con tutte le comodità a portata di mano
Spazio - L'incontro tra accoglienza. La tua dimensione ideale è qui!
Giardino privato - Quel qualcosa in più che ti fa sentire bene
Ora inizia a scoprire cosa significa vivere qui!
DOVE SONO
Nel comune di Fano, in area di espansione urbana, frazione Rosciano
Il contesto è residenziale a bassa densità abitativa
Sono alla base della strada che conduce all'eremo di Monte Giove, qui la quiete è garantita
Ma a pochi metri la Flaminia ti permette di raggiungere comodamente il lavoro e i tuoi interessi
Con in più tutti i servizi primari & secondari a tiro
E il centro e il mare? Bici elettrica e in una manciata di minuti ci sei
Scorri sotto e scopri perché sono pronta a cambiare il tuo modo di abitare.
VISTA DA FUORI
Sono in una piccola palazzina con 4 unità immobiliari costruita a metà degli anni '60
Attualmente in buone condizioni grazie alla completa riqualificazione esterna eseguita nel 2010
ENTRA NEL VIVO
Vivrai in un accogliente appartamento con 3 locali
Le mie condizioni t'invitano subito a trasferirti
Un rifugio trattato con cura dove l'unica cosa che serve è un tocco di freschezza
Infatti anche io nel 2010 sono stato completamente ristrutturato
Sono comodo e funzionale, pronto a restituirti un'esperienza di vita familiare organizzata, razionale e allo stesso tempo distesa e piacevole
L'ingresso è indipendente
E al piano confino solo con il mio gemello sul lato opposto
Infatti sono aperto su 3 lati di testa, e questo restituisce una certa sensazione d'indipendenza
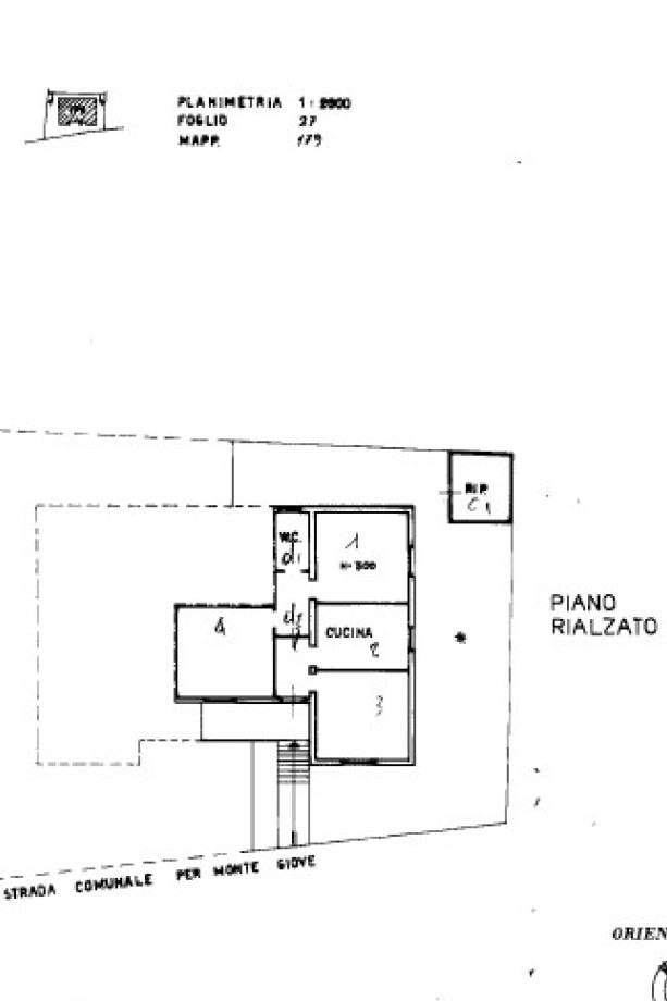
Mi sviluppo su 1 livello
Il piano rialzato, così non hai problemi di umidità
L'ascensore sono le tue gambe
Ma tranquillo, l'unica barriera architettonica sono gli 8 gradini esterni che ti conducono alla porta
COME SONO FATTA ALL'INTERNO
Il terrazzino d'ingresso t'introduce al disimpegno centrale
Da qui entri immediatamente nel soggiorno affiancato da una pratica cucina semi abitabile
L'ambiente che ha accesso allo spazio esterno, cuore della convivialità familiare e amicale, sfogo per bimbi e amici a quattro zampe nelle stagioni più miti
Nella zona notte invece, ti offro ben due camere matrimoniali così anche con due figli la condivisione della stanza sarà sempre una condizione gestibile
Infine il bagno finestrato con doccia dove l'ingegno ha risolto i limiti di spazio
Non poteva mancare poi, un locale di servizio da usare come lavanderia e ripostiglio situato in giardino
Le finestre guardano da ogni lato libero
Con esposizione verso Nord, Sud e Ovest
A tutto vantaggio di illuminazione e aerazione degli ambienti
Vuoi conoscere le metrature nel dettaglio? Trovi tutto nella sezione “Dettaglio superfici”
COSA C'È & COSA NO
Agli arredi ci penserai tu dando la tua interpretazione di stile e funzionalità
Il mio giardinetto è prevalentemente pavimentato a favore del minimo impatto manutentivo
Ma ti regala anche delle vasche a verde dove potrai persino dilettarti con l'attività da ortolano
È completamente recintato, così figli e cagnolino possono scorrazzare senza timori
E nella stanzetta c'è anche un bel camino da usare come angolo BBQ
Niente soffitta
Ma lo spazio accessorio abbonda anche grazie al vano cantina all'interno del garage
Nel box trovano posto con facilità, un'utilitaria, moto e bici
Poi puoi posteggiare all'esterno lungo la strada o sull'area di fronte al garage
QUANDO I DETTAGLI PROPRIO NON BASTANO MAI
Gli impianti rinnovati integralmente nel 2010 sono funzionanti
L'impianto di riscaldamento è autonomo, alimentato a metano con radiatori
E la caldaia si trova nel vano tecnico in garage
Inoltre un inverter nel disimpegno zona notte rende il clima domestico piacevole anche in estate
E i serramenti? Tutto ok
Le finestre sono in legno con vetro camera
All'esterno la protezione è data dagli avvolgibili in PVC
LA GESTIONE
Niente zona PEEP
Nessuna spesa condominiale
E utenze tutte autonome
Con un filo di gas
QUANDO PUOI ENTRARE
Gli inquilini stanno per trasferirsi e potrai iniziare l'anno alla grande nella tua nuova casa
Vieni a conoscermi e se scocca la scintilla inizieremo subito a definire gli step che ti avvieranno verso il prossimo capitolo della tua vita
PERCHÈ SCEGLIERMI
Pronto all'uso e gestione light - Condizioni pronti-via! Parti con il piede giusto e prosegui al tuo ritmo ideale
A contatto con la natura, al centro del tuo mondo - Tutto quello che potevi desiderare, esattamente dove volevi, con tutte le comodità a portata di mano
Spazio - L'incontro tra accoglienza. La tua dimensione ideale è qui!
Giardino privato - Quel qualcosa in più che ti fa sentire bene
Ora inizia a scoprire cosa significa vivere qui!
DOVE SONO
Nel comune di Fano, in area di espansione urbana, frazione Rosciano
Il contesto è residenziale a bassa densità abitativa
Sono alla base della strada che conduce all'eremo di Monte Giove, qui la quiete è garantita
Ma a pochi metri la Flaminia ti permette di raggiungere comodamente il lavoro e i tuoi interessi
Con in più tutti i servizi primari & secondari a tiro
E il centro e il mare? Bici elettrica e in una manciata di minuti ci sei
Scorri sotto e scopri perché sono pronta a cambiare il tuo modo di abitare.
VISTA DA FUORI
Sono in una piccola palazzina con 4 unità immobiliari costruita a metà degli anni '60
Attualmente in buone condizioni grazie alla completa riqualificazione esterna eseguita nel 2010
ENTRA NEL VIVO
Vivrai in un accogliente appartamento con 3 locali
Le mie condizioni t'invitano subito a trasferirti
Un rifugio trattato con cura dove l'unica cosa che serve è un tocco di freschezza
Infatti anche io nel 2010 sono stato completamente ristrutturato
Sono comodo e funzionale, pronto a restituirti un'esperienza di vita familiare organizzata, razionale e allo stesso tempo distesa e piacevole
L'ingresso è indipendente
E al piano confino solo con il mio gemello sul lato opposto
Infatti sono aperto su 3 lati di testa, e questo restituisce una certa sensazione d'indipendenza
Mi sviluppo su 1 livello
Il piano rialzato, così non hai problemi di umidità
L'ascensore sono le tue gambe
Ma tranquillo, l'unica barriera architettonica sono gli 8 gradini esterni che ti conducono alla porta
COME SONO FATTA ALL'INTERNO
Il terrazzino d'ingresso t'introduce al disimpegno centrale
Da qui entri immediatamente nel soggiorno affiancato da una pratica cucina semi abitabile
L'ambiente che ha accesso allo spazio esterno, cuore della convivialità familiare e amicale, sfogo per bimbi e amici a quattro zampe nelle stagioni più miti
Nella zona notte invece, ti offro ben due camere matrimoniali così anche con due figli la condivisione della stanza sarà sempre una condizione gestibile
Infine il bagno finestrato con doccia dove l'ingegno ha risolto i limiti di spazio
Non poteva mancare poi, un locale di servizio da usare come lavanderia e ripostiglio situato in giardino
Le finestre guardano da ogni lato libero
Con esposizione verso Nord, Sud e Ovest
A tutto vantaggio di illuminazione e aerazione degli ambienti
Vuoi conoscere le metrature nel dettaglio? Trovi tutto nella sezione “Dettaglio superfici”
COSA C'È & COSA NO
Agli arredi ci penserai tu dando la tua interpretazione di stile e funzionalità
Il mio giardinetto è prevalentemente pavimentato a favore del minimo impatto manutentivo
Ma ti regala anche delle vasche a verde dove potrai persino dilettarti con l'attività da ortolano
È completamente recintato, così figli e cagnolino possono scorrazzare senza timori
E nella stanzetta c'è anche un bel camino da usare come angolo BBQ
Niente soffitta
Ma lo spazio accessorio abbonda anche grazie al vano cantina all'interno del garage
Nel box trovano posto con facilità, un'utilitaria, moto e bici
Poi puoi posteggiare all'esterno lungo la strada o sull'area di fronte al garage
QUANDO I DETTAGLI PROPRIO NON BASTANO MAI
Gli impianti rinnovati integralmente nel 2010 sono funzionanti
L'impianto di riscaldamento è autonomo, alimentato a metano con radiatori
E la caldaia si trova nel vano tecnico in garage
Inoltre un inverter nel disimpegno zona notte rende il clima domestico piacevole anche in estate
E i serramenti? Tutto ok
Le finestre sono in legno con vetro camera
All'esterno la protezione è data dagli avvolgibili in PVC
LA GESTIONE
Niente zona PEEP
Nessuna spesa condominiale
E utenze tutte autonome
Con un filo di gas
QUANDO PUOI ENTRARE
Gli inquilini stanno per trasferirsi e potrai iniziare l'anno alla grande nella tua nuova casa
Vieni a conoscermi e se scocca la scintilla inizieremo subito a definire gli step che ti avvieranno verso il prossimo capitolo della tua vita
Consistenze
| Descrizione | Superficie | Sup. comm. |
|---|---|---|
| Principali | ||
| Immobile - piano rialzato | 80 Mq | 80 Mqc |
| Balcone - piano rialzato | 8 Mq | 2 Mqc |
| Giardino/Resede | 50 Mq | 5 Mqc |
| Accessorie | ||
| Cantina - piano terra | 8 Mq | 2 Mqc |
| Esterno - piano terra | 6 Mq | 1 Mqc |
| Box/Garage - seminterrato | 27 Mq | 14 Mqc |
| Cantina - seminterrato | 4 Mq | 1 Mqc |
| Posto auto | 8 Mq | 2 Mqc |
| Totale | 107 Mqc | |












.png)